• Esp
  • ___
  • Cat
  • ___
  • Eng

Cadaval Estudio

 
  • Estudio
  • Proyectos
  • Contacto

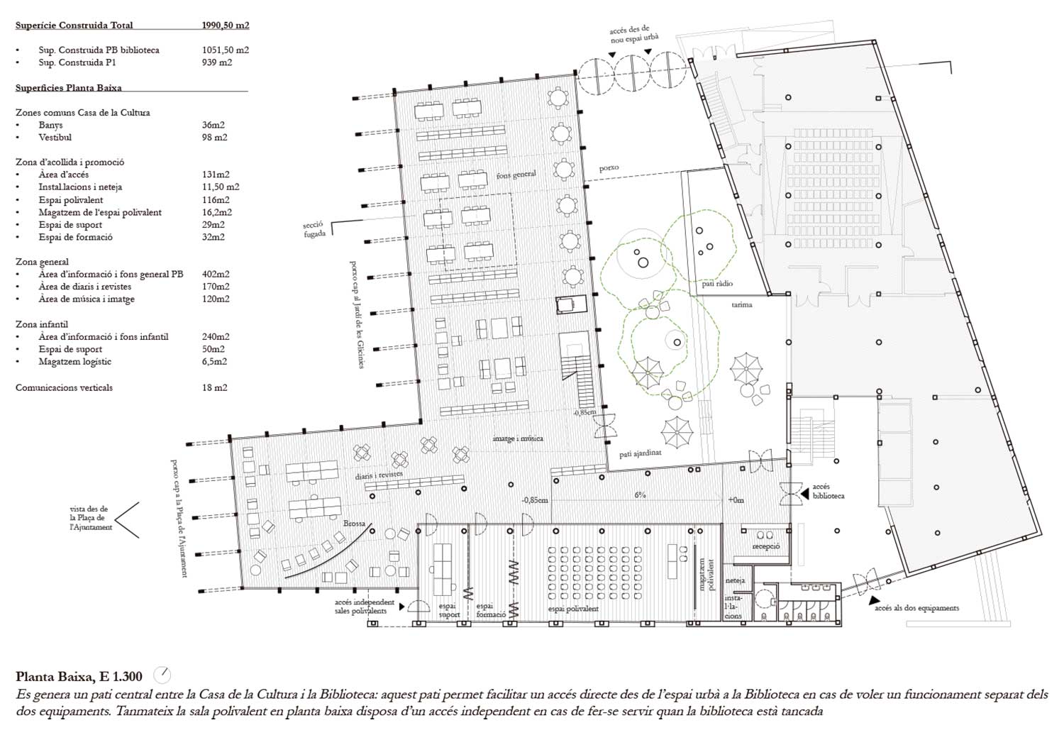
Biblioteca Pública de Olesa

Biblioteca Pública de Olesa

Público, Uso Mixto

Olesa de Montserrat, Cataluña

Concurso Público.  Con: María Amat, Albert Casas, Clara Sola-Morales, Frederic Villagrasa

Biblioteca Pública de Olesa

Público, Uso Mixto

Olesa de Montserrat, Cataluña

Concurso Público.  Con: María Amat, Albert Casas, Clara Sola-Morales, Frederic Villagrasa

  • Esp
  • Cat
  • Eng
  • IG
  • YT
  • FB

©Cadaval Estudio

Pasaje Ali Bei 8 Barcelona,
08018

Córdoba 125 int B-1
Roma Norte
Ciudad de México, 06700

  • Esp
  • ___
  • Cat
  • ___
  • Eng

Cadaval Estudio

  • Estudio
  • Proyectos
  • Contacto
  • Esp
  • /
  • Cat
  • /
  • Eng
  • Esp
  • /
  • Cat
  • /
  • Eng
  • IG
  • YT
  • FB

Cadaval Estudio

Estudio

  • Perfil
  • Premios
  • Videos
  • Entrevistas
  • Publicaciones
  • Exposiciones
  • Textos

/

Proyectos

  • Todos
  • Vivienda
  • Vivienda Plurifamiliar
  • Uso Mixto
  • Efímero
  • Escala Urbana
  • Renovaciones
  • Público

/

Contacto

info@cadaval.eu

Pasaje Ali Bei 8 Barcelona,
08018

Córdoba 125 int B-1
Roma Norte
Ciudad de México, 06700

Trabajo